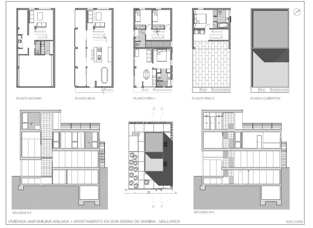
Este proyecto presenta una vivienda de diseño contemporáneo, ubicada en Son Serra, caracterizada por su simplicidad volumétrica y líneas puras.
La construcción en hormigón expuesto enfatiza la solidez estructural y aporta una estética moderna y minimalista. El diseño prioriza la funcionalidad, destacando elementos como la escalera exterior de acero, que conecta los diferentes niveles mientras añade un toque industrial al conjunto.
Los amplios ventanales y el aprovechamiento de la luz natural refuerzan la conexión entre los espacios interiores y el entorno. Un ejemplo de arquitectura sostenible y eficiente en su integración con el paisaje.
Este proyecto de Vivienda Unifamiliar de Son Serra, presenta una vivienda de diseño contemporáneo, ubicada en Son Serra, caracterizada por su simplicidad volumétrica y líneas puras.
La construcción en hormigón expuesto enfatiza la solidez estructural y aporta una estética moderna y minimalista. El diseño prioriza la funcionalidad, destacando elementos como la escalera exterior de acero, que conecta los diferentes niveles mientras añade un toque industrial al conjunto.
Los amplios ventanales y el aprovechamiento de la luz natural refuerzan la conexión entre los espacios interiores y el entorno. Un ejemplo de arquitectura sostenible y eficiente en su integración con el paisaje.
Tomàs Forteza, 55 bajos Local 1 07006
Palma de Mallorca, Spain +34 971418201
Teléfono: +34 971418201
Email: home@homeart.es